業務用洗濯機、パークドライ機他クリーニング機械販売・設計施工システムサービス
クリーニング機械の総合プランナートーコー電機
パークドライ機  |  石油系ホットドライ機  | クリーニング機械 | 業務案内 | 会社案内 |お問い合わせ
トップ > 業務案内
クリーニング機械商品

パークドライ機

パークドライ機|ECOMASTER パークドライ機|VORTEX

石油系ホットドライ機

トーコー電機は、世界最大のドライ機メーカーFIRBIMATIC社の国内総代理店です
クリーニング機械各種販売[クリーニング機械各種]
水洗機・乾燥機・ドライ機他業務用洗濯機、仕上げ機他クリーニング機械の販売、修理

[洗濯設備設計施工]
クリーニング店・工場他洗濯設備(病院、介護施設、福祉施設、老人ホーム、ホテル、ゴルフ場、スポーツ施設他)の設計施工
クリーニング機械修理

業務用洗濯機・クリーニング機器の販売、設計施工
クリーニング店・工場他洗濯設備向け業務用洗濯機、クリーニング機器販売、店舗関連設備の設計施工
[取扱い機器メーカー]
FIRBIMATIC社
(株)三幸社
(株)TOSEI
(株)サン京都
エレクトロラックスジャパン(株)
(株)日本サーモエナー
日本スチール(株)
(株)山本製作所
ワイエイシイ(株)
(株)アサヒ製作所
(株)宮田工機
三浦工業(株)
直本工業(株)
東信精機(株)
(株)イツミ製作所
(株)東京神戸電器
(株)サムソン
(株)日本シーリング
金子製作所(株)   その他
[主な販売店]
竹原商行(株) 神奈川県
三共工業(株) 長野県
三協商事(株) 新潟県
三栄電機販売(株) 北海道
ラクナ油脂(株) 東京・埼玉
(有)アダチ 大分県
(株)アサショウ 九州
その他

[機器納入実績]
クリーニング店
各種老人ホーム・介護施設
温泉・銭湯・サウナ他
クリーニング工場
ホテル・旅館他宿泊施設
その他
病院・クリニック
ゴルフ場・スポーツ施設
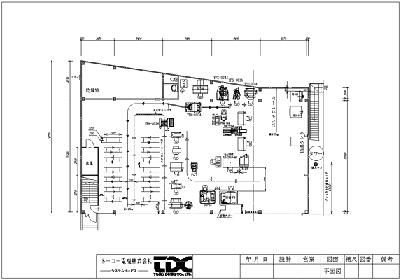
クリーニング設備設計施工(当社施工例)
クリーニング工場設計図

  (クリーニング工場)

クリーニング工場施工例 クリーニング工場施工例
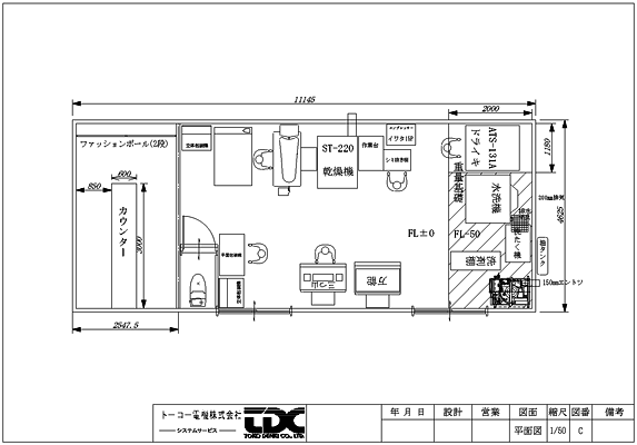
クリーニング店設計図

  (クリーニング店)

クリーニング店施工例 クリーニング店施工例 クリーニング店施工例
クリーニング機械修理・メンテナンス
 修理・メンテナンス、アフターサービスも充実の「安心サポート」
クリーニング機械の故障は、業務に支障をきたす緊急問題!
経験豊富な当社サービスエンジニアが即対応します。

当社では、設計→施工→定期点検→メンテナンスの一貫したシステムでお客様のクリーニング環境をサポートいたします。
各種機器修理・パーツ交換、配管修理、電気系統修理、整備点検など機器や設備の故障に関することなら何でもお気軽にご相談下さい。

また、修理・メンテナンスで発生する技術料や出張諸経費は、
○使用部品代 ○作業工賃 ○基本出向費 の明確な請求システムで、解りにくい請求はございません。
クリーニング機械輸入・代理店業務
世界最大の規模と信頼のドライ機専門メーカー「FIRBIMATIC社」の国内総代理店業務
[FIRBIMATIC社]工場と展示会にて(東京 2008)
ホームパークドライ機石油系ホットドライ機クリーニング機械業務案内会社案内プライバシーポリシー関連リンクお問い合わせ
Copyright(C) TOKO DENKI All Rights Reserved. 
トーコー電機株式会社
埼玉県入間市扇台2-8-45 TEL. 04-2962-6151 FAX. 04-2962-6152